Curiosii for ever!: Car repair manuals for everyone.

Electronic Control System

Electronic Control System

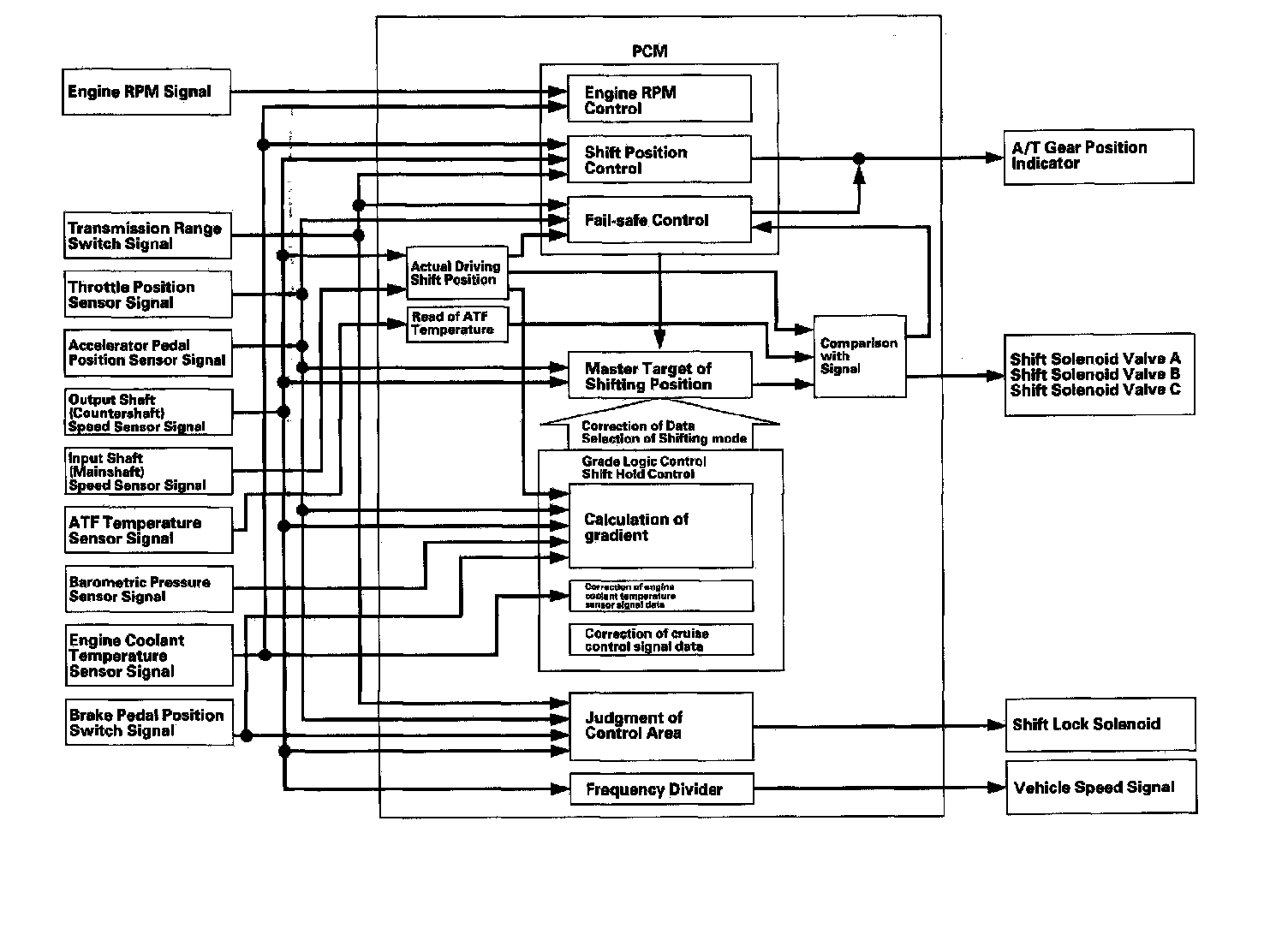
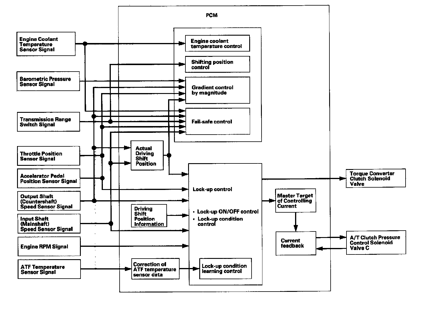
Functional Diagram





The electronic control system consists of the powertrain control module (PCM), sensors, and solenoid valves. Shifting and lock-up are electronically controlled for comfortable driving under all conditions.

The PCM receives input signals from the sensors, switches, and other control units, processes data, and outputs signals for the engine control system and A/T control system. The A/T control system includes shift control, grade logic control, clutch pressure control, and lock-up control. The PCM switches the shift solenoid valves and the A/T clutch pressure control solenoid valves to control shifting transmission gears and lock-up torque converter clutch.





Electrical Control Locations

Shift Control





The PCM instantly determines which gear should be selected by various signals sent from sensors and switches, and it actuates the shift solenoid valves A, B, and C to control shifting.

Also, as grade logic control system and shift hold control system have been adopted to control shifting in the D position. The PCM compares actual driving conditions with memorized driving conditions, based on the input from the throttle position sensor, the engine coolant temperature sensor, the barometric pressure sensor, the brake pedal position switch signal, and the shift lever position signal, to control shifting while the vehicle is ascending or descending a slope.

Shift Solenoid Valve ON - OFF Operation





The PCM turns on and off the shift solenoid valves A, B, and C to control shifting of the transmission gears. The combination of driving signals to shift solenoid valves A, B, and C are shown in the table.

Grade Logic Control: Ascending Control





When the PCM determines that the vehicle is climbing a hill in the D position, the system extends the engagement area of 2nd gear, 3rd gear, and 4th gear to prevent the transmission from frequently shifting between 2nd and 3rd gears, between 3rd and 4th gears, and between 4th and 5th gears, so the vehicle can run smooth and have more power when needed.

NOTE: Shift schedules stored in the PCM between 2nd and 3rd gears, between 3rd and 4th gears, and between 4th and 5th gears, enable the PCM to automatically select the most suitable gear according to the magnitude of a gradient.

Grade Logic Control: Descending Control





When the PCM determines that the vehicle is going down a hill in the D position, the shift-up speed from 4th to 5th gear, 3rd to 4th gear, and from 2nd to 3rd (when the throttle is closed) becomes faster than the set speed for flat road driving to widen the 4th gear, 3rd gear, and 2nd gear driving areas. This, in combination with engine braking from the deceleration lock-up, achieves smooth driving when the vehicle is descending. There are three descending modes with different 4th gear driving areas, 3rd gear driving areas and 2nd gear driving areas according to the magnitude of a gradient stored in the PCM. When the vehicle is in 5th or 4th gear and you are decelerating while applying the brakes on a steep hill, the transmission will downshift to a lower gear. When you accelerate, the transmission will then return to a higher gear.

Deceleration Control
When the vehicle goes around a corner and needs to decelerate first and then accelerate, the PCM sets the data for deceleration control to reduce the number of times the transmission shifts. When the vehicle is decelerating from speeds above 27 mph (43 km/h), the PCM shifts the transmission from 5th or 4th to 2nd earlier than normal to cope with upcoming acceleration.

Shift Hold Control
When the vehicle is driven aggressively on a winding road, the PCM will extend the engagement time of 3rd gear and 4th gear to prevent the transmission from frequently shifting between 3rd, 4th, and 5th gears. This allows the driver to have more control for both acceleration and deceleration.

The PCM monitors the average change in vehicle speed and throttle over time. When these values exceed those for normal driving conditions, the shift-up from 3rd to 4th gear and 4th to 5th gear is delayed. This gives more control over power, and engine braking when the driver is driving aggressively around on a winding road. The transmission will resume the normal shift-up pattern after the PCM determines that normal driving has resumed.

Shift Control - Sequential Sportshift Mode





The transmission is provided the sequential sportshift mode in the D position. In the D position, the transmission has two modes; the automatic shift mode and sequential sportshift mode. The transmission is switched to the sequential sportshift mode by shifting the shift lever into the M position from the D, and the driver can shift up and down manually 1st through 5th gears with the shift lever; much like a manual transmission.

The vehicle can start off in 1st and 2nd gear in the M position.

The sequential sportshift upshift switch and downshift switch are in the shift lever. The driver can shift gears by shifting the shift lever by hand.





The M indicator (A) and shift indicator (B) are in the tachometer in the gauge control module.

In the M position; sequential sportshift mode, the M indicator comes on, and the shift indicator displays the number of the gear selected.

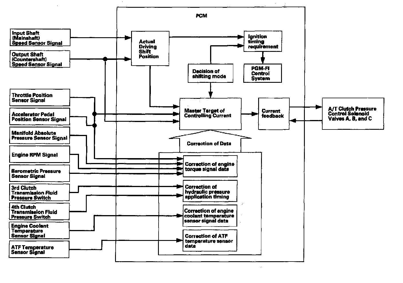
Clutch Pressure Control





The PCM actuates the A/T clutch pressure control solenoid valves A, B, and C to control the clutch pressure. When shifting between lower and higher gears, the clutch pressure regulated by the A/T clutch pressure control solenoid valves A, B, and C engages and disengages the clutch smoothly.

The PCM receives input signals from the various sensors and switches, processes data, and outputs a current to the A/T clutch pressure control solenoid valves A, B, and C.

Lock-up Control





The torque converter clutch solenoid valve controls the hydraulic pressure to switch the lock-up shift valve and lock-up ON and OFF. The PCM actuates the torque converter clutch solenoid valve and the A/T clutch pressure control solenoid valve to start lock-up. The A/T clutch pressure control solenoid valve C applies and regulates the hydraulic pressure to the lock-up control valve to control the amount of the lock-up. The lock-up mechanism operates in the D position (2nd, 3rd, 4th, and 5th).

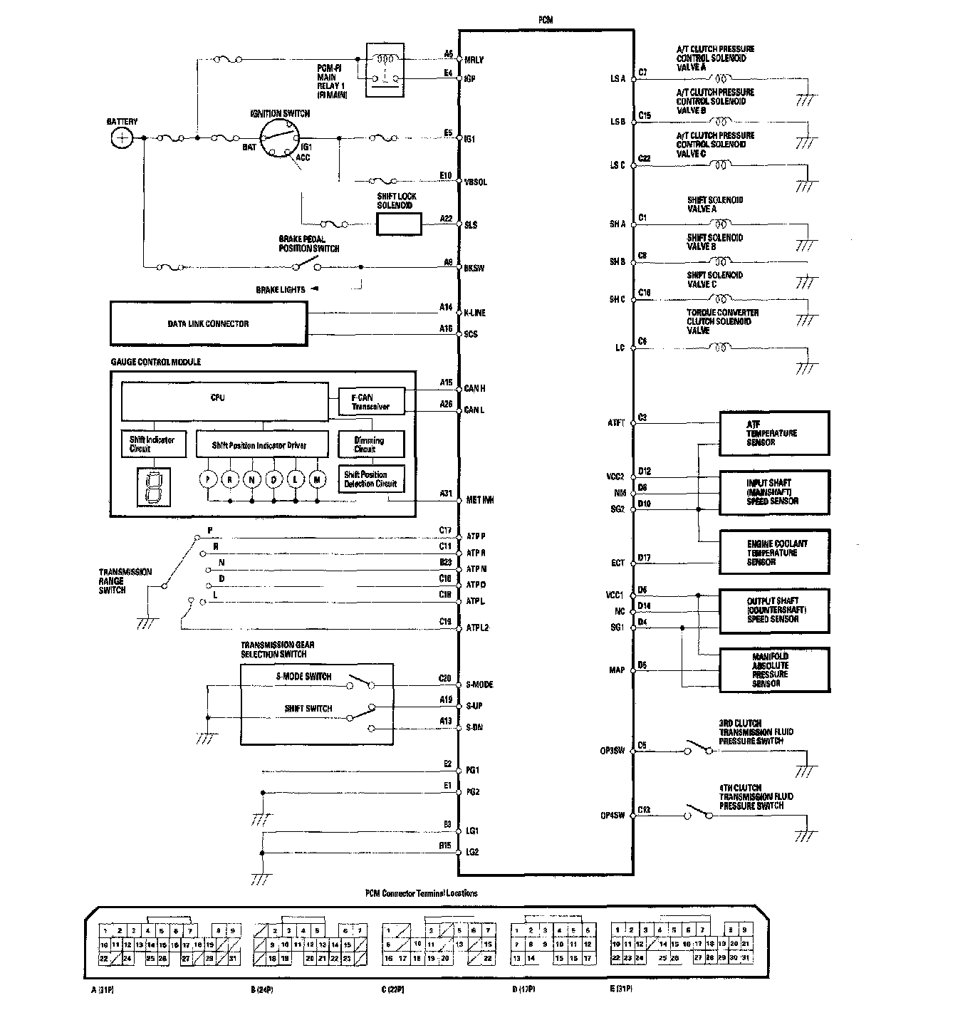
PCM Electrical Connections - 2004-2005 Models:




PCM Electrical Connections - 2006 Model:




PCM Inputs and Outputs - 2004-2005 Models:




PCM Inputs and Outputs - 2004-2005 Models:




PCM Inputs and Outputs - 2004-2005 Models:




PCM Inputs and Outputs - 2004-2005 Models:




PCM Inputs and Outputs - 2004-2005 Models:




PCM Inputs and Outputs - 2004-2005 Models:




PCM Inputs and Outputs - 2006 Model:




PCM Inputs and Outputs - 2006 Model:




PCM Inputs and Outputs - 2006 Model:




PCM Inputs and Outputs - 2006 Model: